オールハウス株式会社 > 広島市安佐南区川内6丁目
広島市安佐南区川内6丁目:芸備線安芸矢口駅にも近くて便利。こちらの物件は中古戸建物件です。建物面積が25坪以上ある為、ファミリーの方も快適に暮らすことができます。システムキッチン付きの物件です。夢のマイホームを広島市安佐南区の芸備線安芸矢口付近で探しましょう。きっと素敵な一戸建てが見つかりますので、まずは当社までお問い合わせ下さい。
※地図上に表示される物件の位置は付近住所に所在することを表すものであり、実際の物件所在地とは異なる場合がございます。
| 物件名 | 広島市安佐南区川内6丁目 | ||
|---|---|---|---|
| 所在地 | 広島県広島市安佐南区川内6丁目 | ||
| 交通 |
|
||
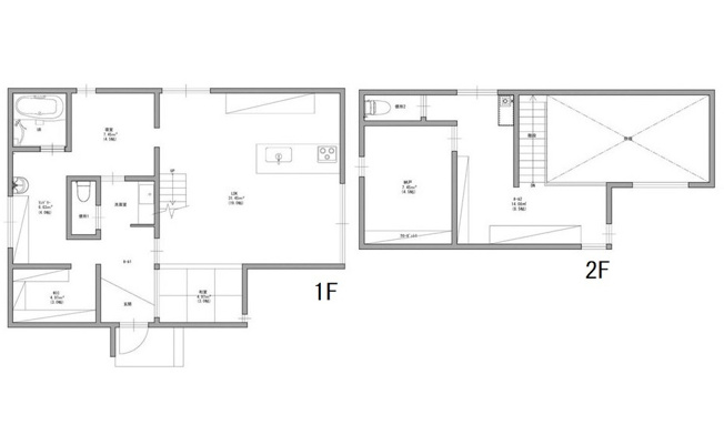
| 間取り/詳細 |
2LDK 1F LDK 洋 和 WIC 2F 納戸 トイレ |
||
| 接道状況 | -(南西 4.0m) | ||
| 価格 | 5,100万円 | 主要採光面 | - |
| 建物面積/坪数 | 95.21㎡/ 28.8坪 | 土地面積/坪数 | 160.27㎡/ 48.48坪 |
| 種別/構造 | 中古一戸建/木造 | 築年月(築年数) | 2024年 2月(築1年) |
| 階建 | 2階建 | 地目 | - |
| 駐車場/料金 | -/ 3台可(車種による) | 地勢 | - |
| 私道面積 | - | セットバック | - |
| 都市計画 | 市街化区域 | 用途地域 | 第一種住居 |
| 建ぺい率/容積率 | 60%/160% | 土地権利 | 所有権 |
| 総区画数 | 1戸 | 借地料/借地期間 | -/- |
| 現況 | 空家 | その他の法令上の制限 | - |
| 取引態様/引渡時期 | 一般媒介/相談 | 建築確認番号 | - |
| 設備条件 |
|
||
| 備考 |
好立地に2024年築戸建住宅(注文住宅) 駐車場3台可(車種による) システムキッチン 南側道路面す 対面式キッチン 納戸 ウォークインクローゼット 川内小学校 城南中学校 |
||
| QRコード |
このQRコードを読み取ることで、ケータイでも物件情報を確認できます。 |
||






















(※元利均等方式 金利5.00%まで ※返済年数5~50年まで入力できます)
(※ボーナスは年2回で計算しています。1000万円まで入力できます)
