オールハウス株式会社 > 広島市安佐南区山本新町4丁目 東亜祇園ニュータウン春日野
快適な生活を送ることの出来る、25坪以上の建物面積の物件です。ニーズの高い中古の戸建て物件は、経済的なメリットも大きいです。ウォークインクローゼットには多くの服を収納することができるので、服の管理がしやすくなります。玄関ポーチがあるので、雨にぬらさずにベビーカーを置けます。当社スタッフが住まい探しをサポート致しますので、可部線下祇園周辺へお引っ越しをするなら、ぜひお問い合わせください。
※地図上に表示される物件の位置は付近住所に所在することを表すものであり、実際の物件所在地とは異なる場合がございます。
| 物件名 | 広島市安佐南区山本新町4丁目 東亜祇園ニュータウン春日野 | ||
|---|---|---|---|
| 所在地 | 広島県広島市安佐南区山本新町4丁目 | ||
| 交通 |
|
||
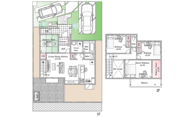
| 間取り/詳細 |
4LDK 1F 17.2LDK 4.5和 2F 6.7洋 5.2洋 5.2洋 2.2WIC トイレ |
||
| 接道状況 | -(北西 公道 6.0m) | ||
| 価格 | 3,180万円 | 主要採光面 | - |
| 建物面積/坪数 | 96.05㎡/ 29.05坪 | 土地面積/坪数 | 165.46㎡/ 50.05坪 |
| 種別/構造 | 中古一戸建/木造 | 築年月(築年数) | 2019年 8月(築6年) |
| 階建 | 2階建 | 地目 | - |
| 駐車場/料金 | -/ 2台可 | 地勢 | - |
| 私道面積 | - | セットバック | - |
| 都市計画 | 市街化区域 | 用途地域 | 第一種低層住居専用 |
| 建ぺい率/容積率 | 50%/100% | 土地権利 | 所有権 |
| 総区画数 | 1戸 | 借地料/借地期間 | -/- |
| 現況 | 空家 | その他の法令上の制限 | - |
| 取引態様/引渡時期 | 一般媒介/相談 | 建築確認番号 | - |
| 設備条件 |
|
||
| 備考 |
オール電化 太陽光発電システム3kW搭載 宅配ボックス 外部物置 BBQスペース カバードポーチ 春日野小学校 祇園中学校 |
||
| QRコード |
このQRコードを読み取ることで、ケータイでも物件情報を確認できます。 |
||






















(※元利均等方式 金利5.00%まで ※返済年数5~50年まで入力できます)
(※ボーナスは年2回で計算しています。1000万円まで入力できます)
