オールハウス株式会社 > アーバンタワー己斐
近くのフレスタ 己斐上店まで徒歩1分で行けます。バス停から徒歩3分以内なので、どこに行くのも便利な立地です。バルコニー付きの物件です。立地条件の良い中古マンションは生活の質を高めてくれます。不動産のことでお悩みなら、先ずは当社をお尋ねください。経験豊富なプロのスタッフがお客様のお悩みを解消いたします。ご連絡はメール又はお電話にてお待ちしております。
※地図上に表示される物件の位置は付近住所に所在することを表すものであり、実際の物件所在地とは異なる場合がございます。
| 物件名 | アーバンタワー己斐 | ||
|---|---|---|---|
| 所在地 | 広島県広島市西区己斐上1丁目 | ||
| 交通 |
|
||
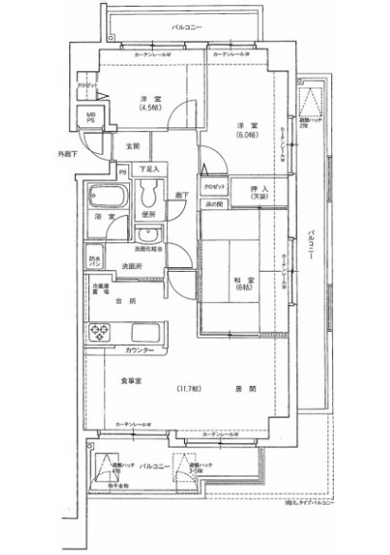
| 間取り/詳細 |
3LDK 11.7LDK 6和 6洋 4.5洋 |
||
| 価格 | 1,800万円 | 管理費+共益費 | 6,100円 |
| 専有面積 | 68.04㎡ | バルコニー面積 | 22.57㎡ |
| 種別/構造 | 中古マンション/鉄筋コンクリート | 築年月(築年数)/方位 | 1995年 3月(築30年)/- |
| 所在階/階建 | 2階/ 10階建 | 地勢 | - |
| 修繕積立金 | 9,100円 | 駐車場/料金 | -/ 空有 7,000円/月 |
| 管理組合有無 | - | 管理形態 | 管理会社に全部委託 |
| 管理方式 | 日勤 | 管理会社 | (株)合人社計画研究所 |
| 棟総戸数 | 44戸 | 用途地域 | 第一種住居 |
| 土地権利 | 所有権 | 国土法届出要否 | 不要 |
| 取引態様 | 一般媒介 | 現状 | 空家 |
| 引渡し | 相談 | 建築確認番号 | - |
| 設備条件 |
|
||
| 備考 |
3面バルコニー 宅配ボックス 己斐小学校 己斐中学校 |
||
| QRコード |
このQRコードを読み取ることで、ケータイでも物件情報を確認できます。 |
||






















(※元利均等方式 金利5.00%まで ※返済年数5~50年まで入力できます)
(※ボーナスは年2回で計算しています。1000万円まで入力できます)
