オールハウス株式会社 > 広島市南区皆実町4丁目
翠町第三公園まで429mです。洗面化粧台には、鏡や照明がついており身支度に利用できます。綺麗な室内の中古戸建て物件で素敵な日々をおくりませんか。広くて嬉しい建物面積も30坪以上あります。広島市南区に住まいを求めるなら、当社スタッフまでお気軽にお問い合わせください。多種多様な不動産情報を取り扱っておりますので、きっと素敵な住まいが見つかることでしょう。
※地図上に表示される物件の位置は付近住所に所在することを表すものであり、実際の物件所在地とは異なる場合がございます。
| 物件名 | 広島市南区皆実町4丁目 | ||
|---|---|---|---|
| 所在地 | 広島県広島市南区皆実町4丁目 | ||
| 交通 |
|
||
| 間取り/詳細 |
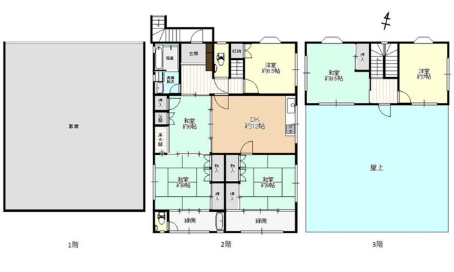
6DK 1F 車庫 2F 約12DK 約8和 約8和 約6.5洋 約6和 3F 約8.5和 約7洋 |
||
| 接道状況 | -(北 2.3m 間口 10.7m) | ||
| 価格 | 6,900万円 | 主要採光面 | - |
| 建物面積/坪数 | 239.01㎡/ 72.3坪 | 土地面積/坪数 | 206.48㎡/ 62.45坪 |
| 種別/構造 | 中古一戸建/鉄骨造 | 築年月(築年数) | 1985年 1月(築41年) |
| 階建 | 3階建 | 地目 | - |
| 駐車場/料金 | -/ 7台可 | 地勢 | - |
| 私道面積 | - | セットバック | 9.09㎡ |
| 都市計画 | 市街化区域 | 用途地域 | 第一種住居 |
| 建ぺい率/容積率 | 60%/200% | 土地権利 | 所有権 |
| 総区画数 | 1戸 | 借地料/借地期間 | -/- |
| 現況 | 居住中 | その他の法令上の制限 | - |
| 取引態様/引渡時期 | 一般媒介/相談 | 建築確認番号 | - |
| 設備条件 |
|
||
| 備考 |
生活施設がすべて徒歩圏内 便利さと住心地が揃う好立地 7台駐車可能のゆとりのある敷地 花火大会を鑑賞できる、眺望良好な屋上スペース 6DKの間取りで、ライフスタイルに合わせた多彩な使い方が可能 TVモニタ付インターホン 温水洗浄便座 オートバス シャワー付洗面化粧台 床下収納 皆実小学校 翠町中学校 |
||
| QRコード |
このQRコードを読み取ることで、ケータイでも物件情報を確認できます。 |
||






















(※元利均等方式 金利5.00%まで ※返済年数5~50年まで入力できます)
(※ボーナスは年2回で計算しています。1000万円まで入力できます)
