オールハウス株式会社 > ステイツ野村向洋
セブンイレブン 広島青崎店まで徒歩3分と近場にコンビニがあるのもポイント。フローリングは掃除が簡単です。バス停が徒歩3分圏内にあります。スーパーが近いと買い物が楽になると主婦の方に喜ばれます。不動産のことで当社にご要望やご不明な点などがあれば、メール若しくはお電話でご連絡ください。経験豊富なプロのスタッフがしっかりとお応え致します。
画像をクリックして視点を操作
※地図上に表示される物件の位置は付近住所に所在することを表すものであり、実際の物件所在地とは異なる場合がございます。
| 物件名 | ステイツ野村向洋 | ||
|---|---|---|---|
| 所在地 | 広島県広島市南区青崎2丁目 | ||
| 交通 |
|
||
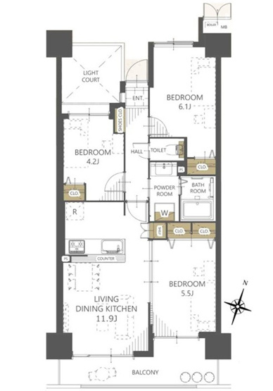
| 間取り/詳細 |
3LDK 11.9LDK 6.1洋 5.5洋 4.2洋 |
||
| 価格 | 3,090万円 | 管理費+共益費 | 6,900円 |
| 専有面積 | 61.00㎡ | バルコニー面積 | 9.33㎡ |
| 種別/構造 | 中古マンション/鉄筋コンクリート | 築年月(築年数)/方位 | 1992年 7月(築33年)/- |
| 所在階/階建 | 2階/ 10階建 | 地勢 | - |
| 修繕積立金 | 5,500円 | 駐車場/料金 | -/- |
| 管理組合有無 | - | 管理形態 | 管理会社に全部委託 |
| 管理方式 | 日勤 | 管理会社 | (株)合人社計画研究所 |
| 棟総戸数 | 88戸 | 用途地域 | 準工業 |
| 土地権利 | 所有権 | 国土法届出要否 | 不要 |
| 取引態様 | 一般媒介 | 現状 | 空家 |
| 引渡し | 即時 | 建築確認番号 | - |
| 設備条件 |
|
||
| 備考 |
新規リノベーション物件(令和7年9月完了) システムキッチン新規交換 ユニットバス新規交換(浴室換気乾燥暖房機付) 洗面化粧台新規交換 建具新規交換 トイレ新規交換 防水パン新規交換 フローリング全室張替 クロス全室張替 フロアタイル新規張替 ハウスクリーニング等 エレベーター機能 オートロック有 青崎小学校 大州中学校 |
||
| QRコード |
このQRコードを読み取ることで、ケータイでも物件情報を確認できます。 |
||






















(※元利均等方式 金利5.00%まで ※返済年数5~50年まで入力できます)
(※ボーナスは年2回で計算しています。1000万円まで入力できます)
