オールハウス株式会社 > 広島市南区堀越3丁目
ぜひ一度見ていただきたい、「広島市南区堀越3丁目」です。最寄りの公園阿弥陀公園(徒歩4分)。外干しできないときも居室の一部を物干しスペースにしなくて済む、浴室乾燥機付きの物件です。一戸建て購入をお考えなら、当社にお任せください。お気に入りの住まいを見つけて、よりご希望に近い生活を送りましょう。ぜひ当社をご利用くださいませ。
※地図上に表示される物件の位置は付近住所に所在することを表すものであり、実際の物件所在地とは異なる場合がございます。
| 物件名 | 広島市南区堀越3丁目 | ||
|---|---|---|---|
| 所在地 | 広島県広島市南区堀越3丁目 | ||
| 交通 |
|
||
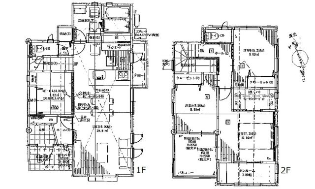
| 間取り/詳細 |
3LDK 1F 18LDK 4ホビールーム 2F 7.75洋 5.25洋 5.25洋 3サンルーム WIC トイレ |
||
| 接道状況 | -(南 3.2m) | ||
| 価格 | 4,730万円 | 主要採光面 | - |
| 建物面積/坪数 | 106.82㎡/ 32.31坪 | 土地面積/坪数 | 229.01㎡/ 69.27坪 |
| 種別/構造 | 新築一戸建/木造 | 築年月(築年数) | 2026年 3月(予定) |
| 階建 | 2階建 | 地目 | - |
| 駐車場/料金 | -/ 並列3台可 | 地勢 | - |
| 私道面積 | - | セットバック | - |
| 都市計画 | 市街化区域 | 用途地域 | 第一種住居 |
| 建ぺい率/容積率 | 60%/160% | 土地権利 | 所有権 |
| 総区画数 | 1戸 | 借地料/借地期間 | -/- |
| 現況 | 未完成 | その他の法令上の制限 | - |
| 取引態様/引渡時期 | 一般媒介/相談 | 建築確認番号 | 第R07認広建セ00714号 |
| 設備条件 |
|
||
| 備考 |
69坪超のひろびろ敷地 準防火仕様 省エネ基準適合住宅 制振ダンパー(住友ゴムMAMORY) フラット35S(金利Bプラン)対応 瑕疵担保責任保険(まもりすまい保険) オール電化(エコキュート) IHクッキングヒーター 食器洗乾燥機 カップボード 浴室乾燥機能 1階・2階ウォシュレットトイレ オールLow-Eペアガラス アルミ樹脂複合サッシ 玄関ドア電子錠 パーティキッチン ホビールーム(1階ダイニング・4帖相当) リビング階段 勝手口 ウォークインクローゼット(2階主寝室) 東向き のサンルーム(2階主寝室・作業カウンター付) 外構付 3台並列駐車可 南向きのひろびろバルコニー・お庭 外壁光セラ(KMEW) 青崎小学校 大州中学校 |
||
| QRコード |
このQRコードを読み取ることで、ケータイでも物件情報を確認できます。 |
||






















(※元利均等方式 金利5.00%まで ※返済年数5~50年まで入力できます)
(※ボーナスは年2回で計算しています。1000万円まで入力できます)
