オールハウス株式会社 > Jcity古市駅前
「Jcity古市駅前」:広島市安佐南区エリアの新居にピッタリ。角住戸は玄関の前を人が通らないので足音が気になりません。浴室乾燥機付きの物件は、乾燥するまでの時間も短縮されるので忙しくて洗濯物をためこんでしまう人にもおすすめです。当社は確かな不動産情報をご提供しております。こだわりやご要望などがあれば、メール又はお電話にて当社にご連絡下さい。経験豊富なスタッフがしっかりとサポート致します。
10月31日 値下げ
※地図上に表示される物件の位置は付近住所に所在することを表すものであり、実際の物件所在地とは異なる場合がございます。
| 物件名 | Jcity古市駅前 | ||
|---|---|---|---|
| 所在地 | 広島県広島市安佐南区中須1丁目 | ||
| 交通 |
|
||
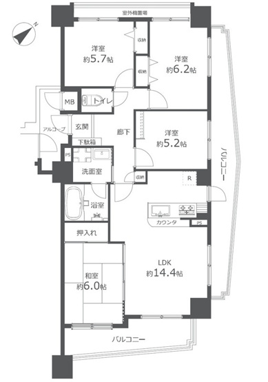
| 間取り/詳細 |
4LDK 約14.4LDK 約6.2洋 約6和 約5.7洋 約5.2洋 |
||
| 価格 | 3,399万円 | 管理費+共益費 | 7,310円 |
| 専有面積 | 81.18㎡ | バルコニー面積 | 19.51㎡ |
| 種別/構造 | 中古マンション/鉄骨鉄筋コンクリート | 築年月(築年数)/方位 | 1998年 7月(築27年)/- |
| 所在階/階建 | 4階/ 15階建 | 地勢 | - |
| 修繕積立金 | 20,300円 | 駐車場/料金 | -/ 空有 10,000〜15,000円/月 |
| 管理組合有無 | - | 管理形態 | 管理会社に全部委託 |
| 管理方式 | 日勤 | 管理会社 | 日本ハウズイング(株) |
| 棟総戸数 | 55戸 | 用途地域 | 近隣商業 |
| 土地権利 | 所有権 | 国土法届出要否 | 不要 |
| 取引態様 | 一般媒介 | 現状 | 空家 |
| 引渡し | 相談 | 建築確認番号 | - |
| 設備条件 |
|
||
| 備考 |
2025年4月リフォーム完了:システムキッチン・ユニットバス・洗面化粧台・ 洗濯機防水パン・温水洗浄機能付トイレ・建具・玄関収納新規交換、 浴室乾燥機・LEDセンサーライト・LEDダウンライト新規設置、LEDシーリングライト新規取付、 フローリング・クロス張替、カーテンレール交換、ハウスクリーニング他 住宅ローン控除・フラット35適合 新耐震基準 リバービュー 角住戸 古市小学校 安佐南中学校 |
||
| QRコード |
このQRコードを読み取ることで、ケータイでも物件情報を確認できます。 |
||






















(※元利均等方式 金利5.00%まで ※返済年数5~50年まで入力できます)
(※ボーナスは年2回で計算しています。1000万円まで入力できます)
