オールハウス株式会社 > 広島市安佐南区伴東8丁目 三菱沼田(大原台)No.1
キッチン周りの掃除がラクラクな、オール電化住宅が今流行りです。長期優良住宅のため、適切な維持管理が行われております。住みやすい空間の条件の1つに前面道路が6m以上あるところを入れてみては。新築戸建てはみんなの夢です。移動時間の短縮をお考えの方には、駅から近い物件がおすすめです。広島高速交通アストラムライン大原近くで物件を購入するなら、ぜひ当社にお任せください。
※地図上に表示される物件の位置は付近住所に所在することを表すものであり、実際の物件所在地とは異なる場合がございます。
| 物件名 | 広島市安佐南区伴東8丁目 三菱沼田(大原台)No.1 | ||
|---|---|---|---|
| 所在地 | 広島県広島市安佐南区伴東8丁目 | ||
| 交通 |
|
||
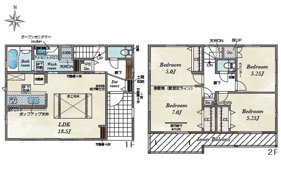
| 間取り/詳細 |
3LDK 1F 18.5LDK 2F 12洋 5.25洋 5.25洋 トイレ |
||
| 接道状況 | -(南西 公道 8.2m) | ||
| 価格 | 3,590万円 | 主要採光面 | - |
| 建物面積/坪数 | 113.53㎡/ 34.34坪 | 土地面積/坪数 | 128.49㎡/ 38.86坪 |
| 種別/構造 | 新築一戸建/木造 | 築年月(築年数) | 2026年 2月(予定) |
| 階建 | 2階建 | 地目 | - |
| 駐車場/料金 | 有/ 2台可(内1台小型) | 地勢 | - |
| 私道面積 | - | セットバック | - |
| 都市計画 | 市街化区域 | 用途地域 | 第一種低層住居専用 |
| 建ぺい率/容積率 | 50%/100% | 土地権利 | 所有権 |
| 総区画数 | 1戸 | 借地料/借地期間 | -/- |
| 現況 | 未完成 | その他の法令上の制限 | - |
| 取引態様/引渡時期 | 一般媒介/相談 | 建築確認番号 | 第R07SHC117846号 |
| 設備条件 |
|
||
| 備考 |
制振ダンパー 耐震等級3の住宅性能評価 長期優良住宅 エネルギー消費性能星3つ オール電化 食洗乾燥機 無料点検実施(引渡後3ヶ月・2年・5年・10年) 浴室換気乾燥機 LED照明(玄関・廊下・キッチン等) バルコニー等13.13㎡含む 太陽光パネル搭載(月額利用料要) 伴東小学校 伴中学校 |
||
| QRコード |
このQRコードを読み取ることで、ケータイでも物件情報を確認できます。 |
||






















(※元利均等方式 金利5.00%まで ※返済年数5~50年まで入力できます)
(※ボーナスは年2回で計算しています。1000万円まで入力できます)
