オールハウス株式会社 > 安芸郡海田町南幸町 セルリアンステージ海田南幸町
「安芸郡海田町南幸町 セルリアンステージ海田南幸町」のここがイチオシ。便利なスーパー「フジ 海田店」まで393mです。これからの新生活での暮らしを一新するために、新築戸建てはいかがでしょうか。お住まいへのこだわりは十人十色です。当社ではどのお客様でも満足していただけるよう、数多くの不動産情報を取り扱っております。ぜひご検討ください。
※地図上に表示される物件の位置は付近住所に所在することを表すものであり、実際の物件所在地とは異なる場合がございます。
| 物件名 | 安芸郡海田町南幸町 セルリアンステージ海田南幸町 | ||
|---|---|---|---|
| 所在地 | 広島県安芸郡海田町南幸町 | ||
| 交通 |
|
||
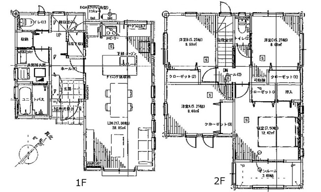
| 間取り/詳細 |
4LDK 1F 17LDK 2F 7.5洋 5.25洋 5.25洋 5.25洋 3サンルーム トイレ |
||
| 接道状況 | -(南東 私道 4.2m) | ||
| 価格 | 4,580万円 | 主要採光面 | - |
| 建物面積/坪数 | 102.68㎡/ 31.06坪 | 土地面積/坪数 | 120.15㎡/ 36.34坪 |
| 種別/構造 | 新築一戸建/木造 | 築年月(築年数) | 2026年 2月(予定) |
| 階建 | 2階建 | 地目 | - |
| 駐車場/料金 | 有(2台)/- | 地勢 | 平坦 |
| 私道面積 | - | セットバック | - |
| 都市計画 | 市街化区域 | 用途地域 | 第一種住居 |
| 建ぺい率/容積率 | 60%/168% | 土地権利 | 所有権 |
| 総区画数 | 1戸 | 借地料/借地期間 | -/- |
| 現況 | 未完成 | その他の法令上の制限 | - |
| 取引態様/引渡時期 | 一般媒介/相談 | 建築確認番号 | 第R07認広建セ00662号 |
| 設備条件 |
|
||
| 備考 |
省エネ基準適合住宅 制振ダンパー(住友ゴムMAMORY) フラット35S(金利Bプラン)対応 オール電化(エコキュート) 瑕疵担保責任保険(まもりすまい保険) IHクッキングヒーター 食器洗乾燥機 カップボード 浴室乾燥機能 1F・2Fウォシュレットトイレ オールLow-Eペアガラス アルミ樹脂複合サッシ 玄関ドア電子錠 Ⅱ型アイランドキッチン(ドゥーブルキッチン) 南向きのサンルーム(2階主寝室・作業カウンター付) 2台駐車可 外構付 外壁光セラ(KMEW) 海田南小学校 海田中学校 |
||
| QRコード |
このQRコードを読み取ることで、ケータイでも物件情報を確認できます。 |
||






















(※元利均等方式 金利5.00%まで ※返済年数5~50年まで入力できます)
(※ボーナスは年2回で計算しています。1000万円まで入力できます)
