オールハウス株式会社 > 広島市安佐北区落合南1丁目 城ヶ丘No.3
広島市安佐北区落合南1丁目 城ヶ丘No.3:芸備線安芸矢口駅にも近くて便利。フローリングに小さな畳を置くと、簡単にインテリアも楽しめます。宅配ボックス付きですので非対面での荷物受け取りができます。新しい土地の新築戸建て物件で、心機一転、新生活を始めませんか。住み良い環境が整った広島市安佐北区で一戸建てをお求めなら、当社にお任せください。詳細情報などにつきましては、お気軽にお問い合わせください。
※地図上に表示される物件の位置は付近住所に所在することを表すものであり、実際の物件所在地とは異なる場合がございます。
| 物件名 | 広島市安佐北区落合南1丁目 城ヶ丘No.3 | ||
|---|---|---|---|
| 所在地 | 広島県広島市安佐北区落合南1丁目 | ||
| 交通 |
|
||
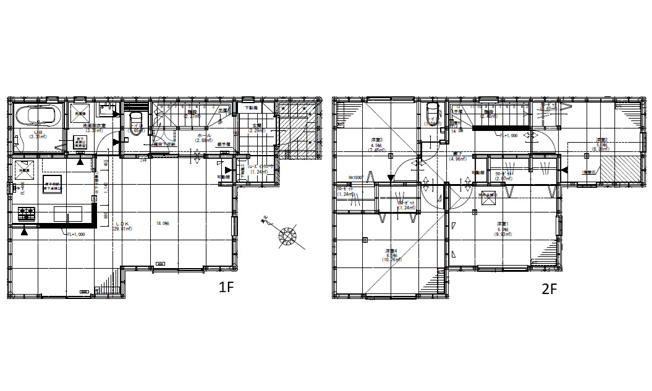
| 間取り/詳細 |
4LDK 1F 18LDK SIC 2F 6.5洋 6洋 5洋 4.5洋 トイレ |
||
| 接道状況 | -(南西 公道 4.3m)(南東 4.3m) | ||
| 価格 | 3,480万円 | 主要採光面 | - |
| 建物面積/坪数 | 97.29㎡/ 29.43坪 | 土地面積/坪数 | 109.42㎡/ 33.09坪 |
| 種別/構造 | 新築一戸建/木造 | 築年月(築年数) | 2025年 12月(新築) |
| 階建 | 2階建 | 地目 | - |
| 駐車場/料金 | 有(2台)/0円 可 | 地勢 | - |
| 私道面積 | - | セットバック | - |
| 都市計画 | 市街化区域 | 用途地域 | 第一種低層住居専用 |
| 建ぺい率/容積率 | 50%/100% | 土地権利 | 所有権 |
| 総区画数 | 1戸 | 借地料/借地期間 | -/- |
| 現況 | 完成済み | その他の法令上の制限 | - |
| 取引態様/引渡時期 | 一般媒介/相談 | 建築確認番号 | 第R07SHC116068号 |
| 設備条件 |
|
||
| 備考 |
長期優良住宅 住宅性能表示W取得(設計性能+建設性能) 耐震等級3 断熱等級6 LED照明(玄関・廊下・キッチン等) 浴室換気乾燥機 宅配BOX完備 定期点検実施 落合小学校 口田中学校 |
||
| QRコード |
このQRコードを読み取ることで、ケータイでも物件情報を確認できます。 |
||






















(※元利均等方式 金利5.00%まで ※返済年数5~50年まで入力できます)
(※ボーナスは年2回で計算しています。1000万円まで入力できます)
