オールハウス株式会社 > AcityヒルズアリーナⅢ番館
広島高速交通アストラムライン大塚駅周辺への引っ越しをお考えなら「AcityヒルズアリーナⅢ番館」。大塚公園まで徒歩6分と近いです。リビングダイニングが18帖以上あり、オープンな雰囲気でゆったりとくつろげます。広島高速交通アストラムライン大塚周辺なら、通勤や通学においてあまり不便さを感じないでしょう。さらにご希望の条件があれば、当社にお聞かせ下さい。
※地図上に表示される物件の位置は付近住所に所在することを表すものであり、実際の物件所在地とは異なる場合がございます。
| 物件名 | AcityヒルズアリーナⅢ番館 | ||
|---|---|---|---|
| 所在地 | 広島県広島市安佐南区大塚西6丁目 | ||
| 交通 |
|
||
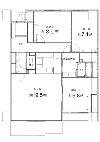
| 間取り/詳細 |
3LDK 約19.5LDK 約8洋 約7.1洋 約6.8洋 |
||
| 価格 | 2,390万円 | 管理費+共益費 | 9,200円 |
| 専有面積 | 97.45㎡ | バルコニー面積 | 15.91㎡ |
| 種別/構造 | 中古マンション/鉄筋コンクリート | 築年月(築年数)/方位 | 1995年 6月(築30年)/- |
| 所在階/階建 | 1階/ 10階建 | 地勢 | - |
| 修繕積立金 | 17,930円 | 駐車場/料金 | -/ 継承可 7,000円/月 |
| 管理組合有無 | - | 管理形態 | 管理会社に全部委託 |
| 管理方式 | 日勤 | 管理会社 | 野村不動産パートナーズ(株) |
| 棟総戸数 | 59戸 | 用途地域 | 第一種中高層住居専用 |
| 土地権利 | 所有権 | 国土法届出要否 | 不要 |
| 取引態様 | 一般媒介 | 現状 | 空家 |
| 引渡し | 相談 | 建築確認番号 | - |
| 設備条件 |
|
||
| 備考 |
2025年11月リフォーム完了:システムキッチン新規交換、ユニットバス新規交換 (浴室換気乾燥暖房機付)、洗面化粧台新規交換、トイレ新規交換、ガス給湯器 新規交換、カップボード新規取付、防水パン新規交換、建具新規交換、クロス 全室張替、床全室新規交換、ダウンライト新規交換、ダウンライト・間接照明新規取付 (LDK・主寝室・玄関)、カーテンレール全室新規取付、ハウスクリーニング完了 あんしん既存売買瑕疵保険料込 大塚小学校 大塚中学校 |
||
| QRコード |
このQRコードを読み取ることで、ケータイでも物件情報を確認できます。 |
||






















(※元利均等方式 金利5.00%まで ※返済年数5~50年まで入力できます)
(※ボーナスは年2回で計算しています。1000万円まで入力できます)
