オールハウス株式会社 > 広島市西区己斐大迫2丁目 国迫
新生活を失敗せず、スタートさせたいならこちらの「広島市西区己斐大迫2丁目 国迫」はいかがでしょうか。システムキッチン付きの物件です。多くの方がこだわりを持つ建物面積も30坪以上なので安心です。綺麗で清潔感のある室内が新築戸建ての特徴です。当社スタッフと一緒に、お客様の新生活に相応しいマイホームを探しましょう。住まい探しを全力でサポート致しますので、まずはお気軽にご連絡ください。
※地図上に表示される物件の位置は付近住所に所在することを表すものであり、実際の物件所在地とは異なる場合がございます。
| 物件名 | 広島市西区己斐大迫2丁目 国迫 | ||
|---|---|---|---|
| 所在地 | 広島県広島市西区己斐大迫2丁目 | ||
| 交通 |
|
||
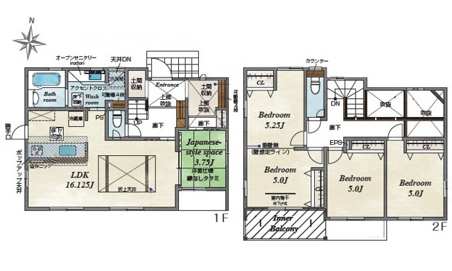
| 間取り/詳細 |
5LDK 1F 16.125LDK 3.75洋和 土間収納 2F 10.25洋 5洋 5洋 トイレ |
||
| 接道状況 | -(北 公道 4.0m) | ||
| 価格 | 3,690万円 | 主要採光面 | - |
| 建物面積/坪数 | 109.35㎡/ 33.07坪 | 土地面積/坪数 | 185.65㎡/ 56.15坪 |
| 種別/構造 | 新築一戸建/木造 | 築年月(築年数) | 2026年 2月(予定) |
| 階建 | 2階建 | 地目 | - |
| 駐車場/料金 | 有(3台)/0円 3台可 | 地勢 | - |
| 私道面積 | - | セットバック | - |
| 都市計画 | 市街化区域 | 用途地域 | 第一種低層住居専用 |
| 建ぺい率/容積率 | 50%/100% | 土地権利 | 所有権 |
| 総区画数 | 1戸 | 借地料/借地期間 | -/- |
| 現況 | 未完成 | その他の法令上の制限 | - |
| 取引態様/引渡時期 | 一般媒介/相談 | 建築確認番号 | 第R07SHC120354号 |
| 設備条件 |
|
||
| 備考 |
制振ダンバー 耐震等級3の住宅性能評価 長期優良住宅 エネルギー消費性能星3つ 無料点検実施(引渡後3ヶ月・2年・5年・10年) オール電化 食洗乾燥機 浴室換気乾燥機 LED照明(玄関・廊下・キッチン等) 太陽光パネル搭載 (月額利用料要) 表記建物面積にバルコニー約5.43㎡含 己斐上小学校 己斐上中学校 |
||
| QRコード |
このQRコードを読み取ることで、ケータイでも物件情報を確認できます。 |
||






















(※元利均等方式 金利5.00%まで ※返済年数5~50年まで入力できます)
(※ボーナスは年2回で計算しています。1000万円まで入力できます)
