オールハウス株式会社 > 広島市安佐南区山本新町4丁目 東亜祇園ニュータウン春日野
前面道路6m以上は確保しているので車の出し入れもラクラクです。リビングの隣に和室が位置しており、機能的な室内となっています。日常生活で利用頻度の高い水回りだからこそ、使い勝手のいいシステムキッチンを選んでみませんか。駐車スペースにお困りの方ここは駐車3台可の物件です。当社では、広島市安佐南区にある不動産情報を数多くご用意しております。お引っ越しをお考えの方は、この機会にぜひご連絡ください。
※地図上に表示される物件の位置は付近住所に所在することを表すものであり、実際の物件所在地とは異なる場合がございます。
| 物件名 | 広島市安佐南区山本新町4丁目 東亜祇園ニュータウン春日野 | ||
|---|---|---|---|
| 所在地 | 広島県広島市安佐南区山本新町4丁目 | ||
| 交通 |
|
||
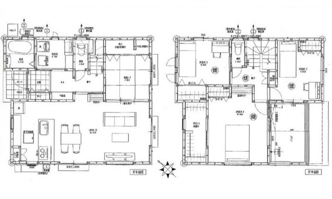
| 間取り/詳細 |
4LDK 1F 18.25LDK 4.5和 2F 8.9洋 5.7洋 5.2洋 3WIC トイレ |
||
| 接道状況 | -(北西 公道 6.0m) | ||
| 価格 | 3,400万円 | 主要採光面 | - |
| 建物面積/坪数 | 108.47㎡/ 32.81坪 | 土地面積/坪数 | 165.86㎡/ 50.17坪 |
| 種別/構造 | 中古一戸建/木造 | 築年月(築年数) | 2023年 8月(築2年) |
| 階建 | 2階建 | 地目 | - |
| 駐車場/料金 | 有(3台)/ (車種による) | 地勢 | - |
| 私道面積 | - | セットバック | - |
| 都市計画 | 市街化区域 | 用途地域 | 第一種低層住居専用 |
| 建ぺい率/容積率 | 50%/100% | 土地権利 | 所有権 |
| 総区画数 | 1戸 | 借地料/借地期間 | -/- |
| 現況 | 完成済み | その他の法令上の制限 | - |
| 取引態様/引渡時期 | 一般媒介/相談 | 建築確認番号 | - |
| 設備条件 |
|
||
| 備考 |
建築後未入居物件 新規外構工事完成済 オール電化 4LDK ウォークインクローゼット カウンターキッチン 春日野小学校 祇園中学校 |
||
| QRコード |
このQRコードを読み取ることで、ケータイでも物件情報を確認できます。 |
||






















(※元利均等方式 金利5.00%まで ※返済年数5~50年まで入力できます)
(※ボーナスは年2回で計算しています。1000万円まで入力できます)
