オールハウス株式会社 > 広島市佐伯区観音台4丁目 東観音台
バス停が徒歩3分圏内にあります。駐車が2台可能ですので、お客様が来た時でも安心ですね。内装リフォーム後のきれいになった状態でお引渡しできます。和室がありますので、食事とお茶の雰囲気を変えることができます。当社で不動産を探しませんか。新しいお住まいで、これまで生活をより豊かなものにしていきましょう。ぜひ当社の利用をご検討くださいませ。
※地図上に表示される物件の位置は付近住所に所在することを表すものであり、実際の物件所在地とは異なる場合がございます。
| 物件名 | 広島市佐伯区観音台4丁目 東観音台 | ||
|---|---|---|---|
| 所在地 | 広島県広島市佐伯区観音台4丁目 | ||
| 交通 |
|
||
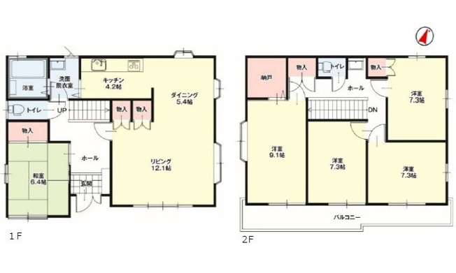
| 間取り/詳細 |
5LDK 1F 12.1L 5.4D 4.2K 6.4和 2F 9.1洋 7.3洋 7.3洋 7.3洋 納戸 トイレ |
||
| 接道状況 | -(南東 公道 6.0m) | ||
| 価格 | 2,599万円 | 主要採光面 | - |
| 建物面積/坪数 | 142.57㎡/ 43.12坪 | 土地面積/坪数 | 186.96㎡/ 56.55坪 |
| 種別/構造 | 中古一戸建/軽量鉄骨 | 築年月(築年数) | 1990年 12月(築35年) |
| 階建 | 2階建 | 地目 | - |
| 駐車場/料金 | 有(2台)/0円 2台可(車種による) | 地勢 | - |
| 私道面積 | - | セットバック | - |
| 都市計画 | 市街化区域 | 用途地域 | 第一種低層住居専用 |
| 建ぺい率/容積率 | 50%/100% | 土地権利 | 所有権 |
| 総区画数 | 1戸 | 借地料/借地期間 | -/- |
| 現況 | 空家 | その他の法令上の制限 | - |
| 取引態様/引渡時期 | 一般媒介/相談 | 建築確認番号 | - |
| 設備条件 |
|
||
| 備考 |
街並みがきれいな住宅地 駐車スペース2台分 建坪約43坪・5LDKと大家族にも十分な広さ 五日市観音西小学校約1,200m 五日市観音中学校約1,400m フレスタ波出石店約1,700m ファミリーマート五日市城山南店約1,300m 五日市観音西小学校 五日市観音中学校 |
||
| QRコード |
このQRコードを読み取ることで、ケータイでも物件情報を確認できます。 |
||






















(※元利均等方式 金利5.00%まで ※返済年数5~50年まで入力できます)
(※ボーナスは年2回で計算しています。1000万円まで入力できます)
