オールハウス株式会社 > 広島市東区上温品3丁目
歩いて徒歩5分の場所に藤三 温品店があるのもポイント。バス停が徒歩3分圏内にあります。近くにスーパーがあれば、すぐに買い物ができるので便利ですね。綺麗な室内の中古戸建て物件で素敵な日々をおくりませんか。地域に密着して不動産情報をご紹介する当社なら、きっとお客様のお住まい探しに役立つことでしょう。まずはご希望条件をスタッフまでお聞かせ下さい。
※地図上に表示される物件の位置は付近住所に所在することを表すものであり、実際の物件所在地とは異なる場合がございます。
| 物件名 | 広島市東区上温品3丁目 | ||
|---|---|---|---|
| 所在地 | 広島県広島市東区上温品3丁目 | ||
| 交通 |
|
||
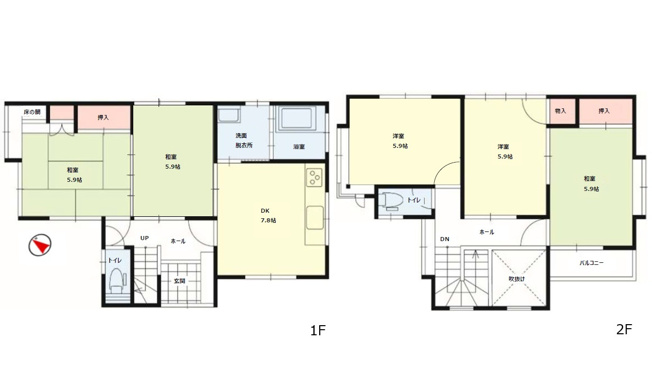
| 間取り/詳細 |
5DK 1F 7.8DK 5.9和 5.9和 2F 5.9和 5.9洋 5.9洋 トイレ |
||
| 接道状況 | -(西 公道 5.5m) | ||
| 価格 | 899万円 | 主要採光面 | - |
| 建物面積/坪数 | 95.75㎡/ 28.96坪 | 土地面積/坪数 | 149.48㎡/ 45.21坪 |
| 種別/構造 | 中古一戸建/木造 | 築年月(築年数) | 1989年 5月(築36年) |
| 階建 | 2階建 | 地目 | - |
| 駐車場/料金 | 有(2台)/ (車種による) | 地勢 | - |
| 私道面積 | - | セットバック | - |
| 都市計画 | 市街化区域 | 用途地域 | 第一種低層住居専用 |
| 建ぺい率/容積率 | 50%/100% | 土地権利 | 所有権 |
| 総区画数 | 1戸 | 借地料/借地期間 | -/- |
| 現況 | 空家 | その他の法令上の制限 | - |
| 取引態様/引渡時期 | 一般媒介/相談 | 建築確認番号 | - |
| 設備条件 |
|
||
| 備考 |
安心のシロアリ保証付き 玄関吹抜けで開放的 南西向きで陽当たり・風通し良好 駐車場2台可(車種による) 上温品小学校約300m 温品中学校約1,200m 藤三温品店約350m 上温品第一公園約250m 上温品小学校 温品中学校 |
||
| QRコード |
このQRコードを読み取ることで、ケータイでも物件情報を確認できます。 |
||






















(※元利均等方式 金利5.00%まで ※返済年数5~50年まで入力できます)
(※ボーナスは年2回で計算しています。1000万円まで入力できます)
