オールハウス株式会社 > 広島市佐伯区五日市町大字昭和台 昭和台
「広島市佐伯区五日市町大字昭和台 昭和台」:広島市佐伯区エリアの新居にピッタリ。トイレが2ヶ所にあるので複数人でも快適に暮らせます。使いやすくおしゃれでニーズの高いシステムキッチン付きの物件です。全居室フローリングの、統一感ある内装です。一戸建て購入をお考えなら、当社にお任せください。お気に入りの住まいを見つけて、よりご希望に近い生活を送りましょう。ぜひ当社をご利用くださいませ。
11月6日 値下げ
※地図上に表示される物件の位置は付近住所に所在することを表すものであり、実際の物件所在地とは異なる場合がございます。
| 物件名 | 広島市佐伯区五日市町大字昭和台 昭和台 | ||
|---|---|---|---|
| 所在地 | 広島県広島市佐伯区五日市町大字昭和台 | ||
| 交通 |
|
||
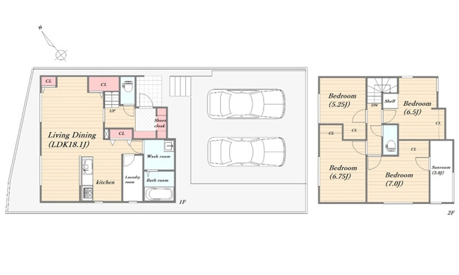
| 間取り/詳細 |
4LDK 1F 18.1LDK SIC ランドリールーム 2F 7洋 6.75洋 6.5洋 5.25洋 3サンルーム トイレ |
||
| 接道状況 | -(南東 6.2m) | ||
| 価格 | 4,396万円 | 主要採光面 | - |
| 建物面積/坪数 | 105.16㎡/ 31.81坪 | 土地面積/坪数 | 180.58㎡/ 54.62坪 |
| 種別/構造 | 新築一戸建/木造 | 築年月(築年数) | 2025年 9月(新築) |
| 階建 | 2階建 | 地目 | - |
| 駐車場/料金 | 有(2台)/0円 並列2台可 | 地勢 | - |
| 私道面積 | - | セットバック | - |
| 都市計画 | 市街化区域 | 用途地域 | 第一種住居 |
| 建ぺい率/容積率 | 60%/200% | 土地権利 | 所有権 |
| 総区画数 | 1戸 | 借地料/借地期間 | -/- |
| 現況 | 完成済み | その他の法令上の制限 | - |
| 取引態様/引渡時期 | 一般媒介/相談 | 建築確認番号 | 第R07認広健セ00107号 |
| 設備条件 |
|
||
| 備考 |
LDK18帖以上 サンルーム シューズインクローク TVモニター付インターフォン 対面式システムキッチン パントリ- 食器洗浄乾燥機 床下収納 勝手口 シャワー付洗面台 浴室1坪以上 ランドリールーム オール電化 五日市東小学校徒歩6分 五日市中学校徒歩18分 ひろみ幼稚園徒歩10分 ウォンツ皆賀店徒歩5分 セブンイレブン広島皆賀3丁目店徒歩5分 五日市東小学校 五日市中学校 |
||
| QRコード |
このQRコードを読み取ることで、ケータイでも物件情報を確認できます。 |
||






















(※元利均等方式 金利5.00%まで ※返済年数5~50年まで入力できます)
(※ボーナスは年2回で計算しています。1000万円まで入力できます)
