オールハウス株式会社 > 広島市安佐北区三入南2丁目
周辺のバス停は近いほど便利です。こちらはバス停から徒歩3分以内。設備も充実で、快適な生活を送る事のできる、中古の戸建て物件。トイレが2ヶ所にあるので複数人でも快適に暮らせます。こだわり条件の一つ東南側道路に面している物件になってます。住み良い環境が整っている広島市安佐北区で新生活を始めるのであれば、当社で不動産探しを行ってください。まずはお問い合わせからお待ちしております。
※地図上に表示される物件の位置は付近住所に所在することを表すものであり、実際の物件所在地とは異なる場合がございます。
| 物件名 | 広島市安佐北区三入南2丁目 | ||
|---|---|---|---|
| 所在地 | 広島県広島市安佐北区三入南2丁目 | ||
| 交通 |
|
||
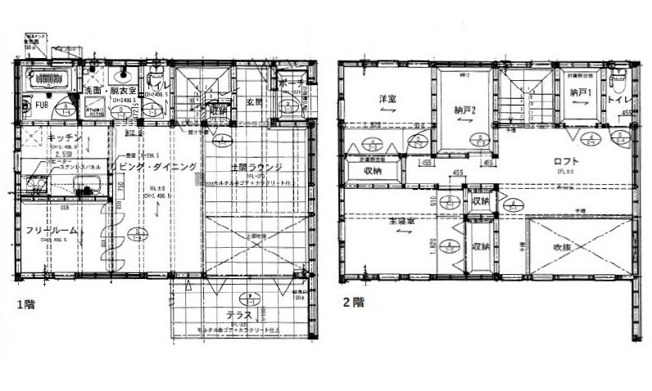
| 間取り/詳細 |
2LDK 1F LDK フリールーム 土間ラウンジ 2F 洋 洋 納戸 納戸 トイレ ロフト |
||
| 接道状況 | -(北東 4.9m)(南東 4.2m) | ||
| 価格 | 2,790万円 | 主要採光面 | - |
| 建物面積/坪数 | 102.33㎡/ 30.95坪 | 土地面積/坪数 | 179.89㎡/ 54.41坪 |
| 種別/構造 | 中古一戸建/木造 | 築年月(築年数) | 2015年 9月(築10年) |
| 階建 | 2階建 | 地目 | - |
| 駐車場/料金 | 有(4台)/0円 4台可(1台軽) | 地勢 | - |
| 私道面積 | - | セットバック | - |
| 都市計画 | 市街化区域 | 用途地域 | 第一種住居 |
| 建ぺい率/容積率 | 60%/200% | 土地権利 | 所有権 |
| 総区画数 | 1戸 | 借地料/借地期間 | -/- |
| 現況 | 居住中 | その他の法令上の制限 | - |
| 取引態様/引渡時期 | 一般媒介/相談 | 建築確認番号 | - |
| 設備条件 |
|
||
| 備考 |
ログハウステイストの注文住宅で開放的な住まい 三入南第三公園そばで、子どもがのびのび遊べる環境 四方建物なしの陽当り抜群な明るい家 広い庭でBBQも良し 土間スペースはバイクやアウトドア収納にも最適 三入小学校 三入中学校 |
||
| QRコード |
このQRコードを読み取ることで、ケータイでも物件情報を確認できます。 |
||






















(※元利均等方式 金利5.00%まで ※返済年数5~50年まで入力できます)
(※ボーナスは年2回で計算しています。1000万円まで入力できます)
