オールハウス株式会社 > 東広島市八本松南4丁目
「東広島市八本松南4丁目」のここがイチオシ。暮らしに便利なショージ八本松南店(スーパー)がこちらから488mのところにあります。新築の戸建て物件で、夢のマイホーム生活を送りませんか。当社スタッフとマイホームを探しましょう。東広島市や山陽本線八本松付近での住まい探しを全力でサポート致します。まずはお気軽にご連絡ください。
※地図上に表示される物件の位置は付近住所に所在することを表すものであり、実際の物件所在地とは異なる場合がございます。
| 物件名 | 東広島市八本松南4丁目 | ||
|---|---|---|---|
| 所在地 | 広島県東広島市八本松南4丁目 | ||
| 交通 |
|
||
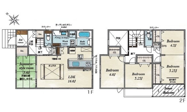
| 間取り/詳細 |
5LDK 1F 16LDK 5洋和 2F 9.75洋 6洋 5.25洋 トイレ |
||
| 接道状況 | -(北 公道 5.9m)(西 6.7m) | ||
| 価格 | 3,890万円 | 主要採光面 | - |
| 建物面積/坪数 | 111.78㎡/ 33.81坪 | 土地面積/坪数 | 182.41㎡/ 55.17坪 |
| 種別/構造 | 新築一戸建/木造 | 築年月(築年数) | 2026年 2月(予定) |
| 階建 | 2階建 | 地目 | - |
| 駐車場/料金 | 有(3台)/0円 3台可 | 地勢 | - |
| 私道面積 | - | セットバック | - |
| 都市計画 | 市街化調整区域 | 用途地域 | - |
| 建ぺい率/容積率 | 60%/200% | 土地権利 | 所有権 |
| 総区画数 | 1戸 | 借地料/借地期間 | -/- |
| 現況 | 未完成 | その他の法令上の制限 | - |
| 取引態様/引渡時期 | 一般媒介/相談 | 建築確認番号 | 第R07SHC121741号 |
| 設備条件 |
|
||
| 備考 |
制振ダンパー 耐震等級3の住宅性能評価 長期優良住宅 エネルギー消費性能星3つ 無料点検実施(引渡後3ヶ月・2年・5年・10年) LED照明(玄関・廊下・キッチン等) オール電化 食洗乾燥機 浴室換気乾燥機 太陽光パネル搭載(10年間月額利用料要) 表記建物面積にバルコニー面積約4.97㎡含む 八本松小学校 八本松中学校 |
||
| QRコード |
このQRコードを読み取ることで、ケータイでも物件情報を確認できます。 |
||






















(※元利均等方式 金利5.00%まで ※返済年数5~50年まで入力できます)
(※ボーナスは年2回で計算しています。1000万円まで入力できます)
