オールハウス株式会社 > 広島市東区温品3丁目 藤見が丘
こだわりで選びたい方におすすめ。広島市東区エリアで住まいをお探しなら「広島市東区温品3丁目 藤見が丘」。送り迎えも楽々。広島市立温品幼稚園まで徒歩5分です。生活を豊かにする様々な設備も充実した、新築の戸建て物件です。当社で不動産を探しませんか。新しいお住まいで、これまで生活をより豊かなものにしていきましょう。ぜひ当社の利用をご検討くださいませ。
※地図上に表示される物件の位置は付近住所に所在することを表すものであり、実際の物件所在地とは異なる場合がございます。
| 物件名 | 広島市東区温品3丁目 藤見が丘 | ||
|---|---|---|---|
| 所在地 | 広島県広島市東区温品3丁目 | ||
| 交通 |
|
||
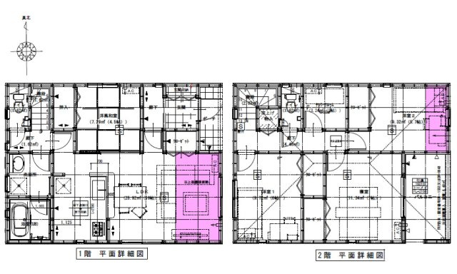
| 間取り/詳細 |
4LDK 1F 16LDK 4.5和 2F 7洋 6洋 5.7洋 2テレワークルーム トイレ |
||
| 接道状況 | -(東 公道 3.7m) | ||
| 価格 | 3,980万円 | 主要採光面 | - |
| 建物面積/坪数 | 105.29㎡/ 31.85坪 | 土地面積/坪数 | 116.72㎡/ 35.30坪 |
| 種別/構造 | 新築一戸建/木造 | 築年月(築年数) | 2026年 3月(予定) |
| 階建 | 2階建 | 地目 | - |
| 駐車場/料金 | 有/ 可 | 地勢 | - |
| 私道面積 | - | セットバック | - |
| 都市計画 | 市街化区域 | 用途地域 | 第二種中高層住居専用 |
| 建ぺい率/容積率 | 60%/160% | 土地権利 | 所有権 |
| 総区画数 | 1戸 | 借地料/借地期間 | -/- |
| 現況 | 未完成 | その他の法令上の制限 | - |
| 取引態様/引渡時期 | 一般媒介/相談 | 建築確認番号 | 第R07SHC120317号 |
| 設備条件 |
|
||
| 備考 |
引渡後無料点検実施(6ヶ月・2年・5年・10年の計4回) 住宅性能評価取得(4分野6項目最高等級取得) 温品小学校 温品中学校 |
||
| QRコード |
このQRコードを読み取ることで、ケータイでも物件情報を確認できます。 |
||






















(※元利均等方式 金利5.00%まで ※返済年数5~50年まで入力できます)
(※ボーナスは年2回で計算しています。1000万円まで入力できます)
