オールハウス株式会社 > 広島市東区中山上2丁目 ホーメスト広島中山台
新生活を失敗せず、スタートさせたいならこちらの「広島市東区中山上2丁目 ホーメスト広島中山台」はいかがでしょうか。この物件はトイレが2ヶ所にあります。フローリング張替済みの気持ちいい新居で、スタートダッシュを切りましょう。値段がお手ごろな中古戸建てはいかがでしょうか。一戸建てを探すのであれば、当社スタッフがお手伝いいたします。広島市東区の芸備線矢賀周辺にある不動産のことならお任せ下さい。
画像をクリックして視点を操作
※地図上に表示される物件の位置は付近住所に所在することを表すものであり、実際の物件所在地とは異なる場合がございます。
| 物件名 | 広島市東区中山上2丁目 ホーメスト広島中山台 | ||
|---|---|---|---|
| 所在地 | 広島県広島市東区中山上2丁目 | ||
| 交通 |
|
||
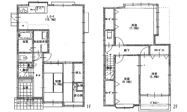
| 間取り/詳細 |
4LDK 1F 13.7LDK 5.8和 2F 7.2洋 6.1洋 5.8洋 トイレ |
||
| 接道状況 | -(南西 公道) | ||
| 価格 | 2,380万円 | 主要採光面 | - |
| 建物面積/坪数 | 94.40㎡/ 28.55坪 | 土地面積/坪数 | 111.45㎡/ 33.71坪 |
| 種別/構造 | 中古一戸建/木造 | 築年月(築年数) | 1992年 12月(築33年) |
| 階建 | 2階建 | 地目 | - |
| 駐車場/料金 | 有(2台)/0円 2〜3台可(車種による) | 地勢 | - |
| 私道面積 | - | セットバック | - |
| 都市計画 | 市街化区域 | 用途地域 | 第一種低層住居専用 |
| 建ぺい率/容積率 | 50%/100% | 土地権利 | 所有権 |
| 総区画数 | 1戸 | 借地料/借地期間 | -/- |
| 現況 | 空家 | その他の法令上の制限 | - |
| 取引態様/引渡時期 | 一般媒介/相談 | 建築確認番号 | - |
| 設備条件 |
|
||
| 備考 |
令和7年1月全面改装済:キッチン・ユニットバス・ 洗面台・トイレ交換、フローリング・クロス等張り替え、 外装塗り替え オール電化住宅(エコキュート) 駐車は2台から3台(小型車)可 東浄小学校 戸坂中学校 |
||
| QRコード |
このQRコードを読み取ることで、ケータイでも物件情報を確認できます。 |
||






















(※元利均等方式 金利5.00%まで ※返済年数5~50年まで入力できます)
(※ボーナスは年2回で計算しています。1000万円まで入力できます)
