オールハウス株式会社 > 安芸郡熊野町川角1丁目No.2
こちらの新築戸建てで新たな生活のスタートをきりませんか。システムキッチンは使いやすく汚れにくいのでご好評です。モニターから顔が見えるTVインターホン付きです。浴室乾燥機のあるお風呂場は洗濯物を干すときにも便利です。人生において重要な役割を持っているのが「住」です。より良い住まいをお求めであれば、当社スタッフまでお気軽にお声かけください。
※地図上に表示される物件の位置は付近住所に所在することを表すものであり、実際の物件所在地とは異なる場合がございます。
| 物件名 | 安芸郡熊野町川角1丁目No.2 | ||
|---|---|---|---|
| 所在地 | 広島県安芸郡熊野町川角1丁目 | ||
| 交通 |
|
||
| 間取り/詳細 |
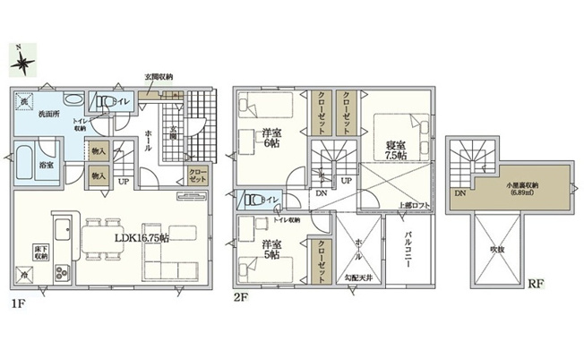
3LDK 1F 16.75LDK 2F 7.5洋 6洋 5洋 トイレ RF 小屋裏収納 |
||
| 接道状況 | -(南西 公道 5.6m) | ||
| 価格 | 2,680万円 | 主要採光面 | - |
| 建物面積/坪数 | 101.25㎡/ 30.62坪 | 土地面積/坪数 | 139.63㎡/ 42.23坪 |
| 種別/構造 | 新築一戸建/木造 | 築年月(築年数) | 2026年 2月(予定) |
| 階建 | 2階建 | 地目 | - |
| 駐車場/料金 | 有(2台)/ 並列2台可(車種による) | 地勢 | - |
| 私道面積 | - | セットバック | - |
| 都市計画 | 市街化区域 | 用途地域 | 第一種住居 |
| 建ぺい率/容積率 | 60%/200% | 土地権利 | 所有権 |
| 総区画数 | 1戸 | 借地料/借地期間 | -/- |
| 現況 | 未完成 | その他の法令上の制限 | - |
| 取引態様/引渡時期 | 一般媒介/相談 | 建築確認番号 | 第R07SHC116818号 |
| 設備条件 |
|
||
| 備考 |
オール電化住宅 耐震等級3 省エネ性能ラベル有 埋蔵文化財包蔵地域 東側私道:14㎡ 持分有(上水道管 埋設承諾書・公共下水道施設設置承諾書引継ぎあり) ルーフバルコニーを除いた建物面積:96.39㎡ 住宅性能評価取得 システムキッチン 浴室乾燥機 防犯カメラ エコキュート シャワー付洗面化粧台 TVモニター付インターホン シャワートイレ 熊野第三小学校 熊野中学校 |
||
| QRコード |
このQRコードを読み取ることで、ケータイでも物件情報を確認できます。 |
||






















(※元利均等方式 金利5.00%まで ※返済年数5~50年まで入力できます)
(※ボーナスは年2回で計算しています。1000万円まで入力できます)
