オールハウス株式会社 > 広島市安佐北区あさひが丘7丁目 コープタウンあさひが丘No.2
広くて嬉しい建物面積も30坪以上あります。オール電化住宅なら基本料金を節約することができます。トイレが2ヶ所にあるので複数人でも快適に暮らせます。大人数でも不自由なく楽しめる、15帖以上のLDKです。一戸建ての情報だけではなく、地域環境も併せて知りたいという方は、当社までご連絡ください。広島市安佐北区にある広島高速交通アストラムライン上安周辺の地域環境を知り尽くしております。
※地図上に表示される物件の位置は付近住所に所在することを表すものであり、実際の物件所在地とは異なる場合がございます。
| 物件名 | 広島市安佐北区あさひが丘7丁目 コープタウンあさひが丘No.2 | ||
|---|---|---|---|
| 所在地 | 広島県広島市安佐北区あさひが丘7丁目 | ||
| 交通 |
|
||
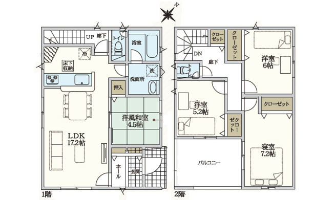
| 間取り/詳細 |
4LDK 1F 17.2LDK 4.5和 2F 7.2洋 6洋 5.2洋 トイレ |
||
| 接道状況 | -(南東 公道 6.1m) | ||
| 価格 | 2,380万円 | 主要採光面 | - |
| 建物面積/坪数 | 105.70㎡/ 31.97坪 | 土地面積/坪数 | 217.19㎡/ 65.69坪 |
| 種別/構造 | 新築一戸建/木造 | 築年月(築年数) | 2026年 1月(予定) |
| 階建 | 2階建 | 地目 | - |
| 駐車場/料金 | 有(2台)/0円 2台可(車種による) | 地勢 | - |
| 私道面積 | - | セットバック | - |
| 都市計画 | 市街化区域 | 用途地域 | 第一種低層住居専用 |
| 建ぺい率/容積率 | 50%/100% | 土地権利 | 所有権 |
| 総区画数 | 1戸 | 借地料/借地期間 | -/- |
| 現況 | 未完成 | その他の法令上の制限 | - |
| 取引態様/引渡時期 | 一般媒介/相談 | 建築確認番号 | 第R07SHC115434号 |
| 設備条件 |
|
||
| 備考 |
安心のオール電化住宅 耐震等級3 省エネ性能ラベルあり 小・中学校徒歩圏内でお子様の通学も安心 土砂災害警戒区域 ルーフバルコニー除外面積:95.98㎡ 西側隣地ブロック越境あり(解消不可につき覚書有) 住宅性能評価取得 システムキッチン 浴室乾燥機 エコキュート シャワー付洗面化粧台 TVモニター付インターホン シャワートイレ 防犯カメラ 日浦小学校 日浦中学校 |
||
| QRコード |
このQRコードを読み取ることで、ケータイでも物件情報を確認できます。 |
||






















(※元利均等方式 金利5.00%まで ※返済年数5~50年まで入力できます)
(※ボーナスは年2回で計算しています。1000万円まで入力できます)
