オールハウス株式会社 > 東広島市八本松飯田7丁目No.9
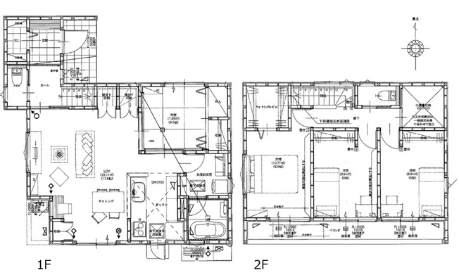
沢山物が入るウォークインクロゼットがあるととても便利です。余裕のある15帖以上のLDKで、日々の生活にゆとりが出ます。建物面積が25坪以上ある為、ファミリーの方も快適に暮らすことができます。前面道路6m以上ある物件です。当社では豊富な不動産情報をご用意して、お客様をお待ちしております。皆様がより良い暮らしを送れるような不動産を紹介いたしますので、ぜひご利用ください。
※地図上に表示される物件の位置は付近住所に所在することを表すものであり、実際の物件所在地とは異なる場合がございます。
| 物件名 | 東広島市八本松飯田7丁目No.9 | ||
|---|---|---|---|
| 所在地 | 広島県東広島市八本松飯田7丁目 | ||
| 交通 |
|
||
| 間取り/詳細 |
4LDK 1F 17.6LDK 4.5和 SIC 2F 6.5洋 6洋 6洋 WIC 小屋裏収納 トイレ |
||
| 接道状況 | -(北 6.0m)(西 6.5m)(南 5.0m) | ||
| 価格 | 3,400万円 | 主要採光面 | - |
| 建物面積/坪数 | 98.95㎡/ 29.93坪 | 土地面積/坪数 | 162.78㎡/ 49.24坪 |
| 種別/構造 | 新築一戸建/木造 | 築年月(築年数) | 2025年 4月(新築) |
| 階建 | 2階建 | 地目 | - |
| 駐車場/料金 | -/- | 地勢 | - |
| 私道面積 | - | セットバック | - |
| 都市計画 | 市街化区域 | 用途地域 | 第一種住居 |
| 建ぺい率/容積率 | 60%/200% | 土地権利 | 所有権 |
| 総区画数 | 1戸 | 借地料/借地期間 | -/- |
| 現況 | 完成済み | その他の法令上の制限 | - |
| 取引態様/引渡時期 | 一般媒介/相談 | 建築確認番号 | 第R06認広建セ01571号 |
| 設備条件 |
|
||
| 備考 |
工法:在来工法 施工:トータテハウジング 外構付 瑕疵担保保険付 フラット35S使用可能(但し、期限内に限ります) オール電化仕様 カップボード有り 川上小学校 磯松中学校 |
||
| QRコード |
このQRコードを読み取ることで、ケータイでも物件情報を確認できます。 |
||























(※元利均等方式 金利5.00%まで ※返済年数5~50年まで入力できます)
(※ボーナスは年2回で計算しています。1000万円まで入力できます)
