オールハウス株式会社 > 広島市南区旭2丁目No.3
新生活を失敗せず、スタートさせたいならこちらの「広島市南区旭2丁目No.3」はいかがでしょうか。セブンイレブン旭2丁目店まで徒歩2分と近場にコンビニがあるのもポイント。ご希望のお住まいを探しませんか。当社では数多くの不動産情報を取り扱っております。住まい探しは是非私どもにもサポートさせてください。
※地図上に表示される物件の位置は付近住所に所在することを表すものであり、実際の物件所在地とは異なる場合がございます。
| 物件名 | 広島市南区旭2丁目No.3 | ||
|---|---|---|---|
| 所在地 | 広島県広島市南区旭2丁目 | ||
| 交通 |
|
||
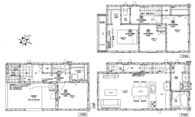
| 間取り/詳細 |
1LDK 1F 5.25納戸 WIC 車庫 2F 16LDK 浴室 洗面 トイレ 3F 5.25洋 5.25納戸 4.14納戸 WIC トイレ |
||
| 接道状況 | -(南東 3.5m) | ||
| 価格 | 4,590万円 | 主要採光面 | - |
| 建物面積/坪数 | 98.94㎡/ 29.92坪 | 土地面積/坪数 | 65.04㎡/ 19.67坪 |
| 種別/構造 | 新築一戸建/木造 | 築年月(築年数) | 2025年 3月(新築) |
| 階建 | 3階建 | 地目 | - |
| 駐車場/料金 | 有/0円 可 | 地勢 | - |
| 私道面積 | - | セットバック | - |
| 都市計画 | 市街化区域 | 用途地域 | 第一種住居 |
| 建ぺい率/容積率 | 60%/200% | 土地権利 | 所有権 |
| 総区画数 | 1戸 | 借地料/借地期間 | -/- |
| 現況 | 完成済み | その他の法令上の制限 | - |
| 取引態様/引渡時期 | 一般媒介/相談 | 建築確認番号 | 第R06認広建セ00957号 |
| 設備条件 |
|
||
| 備考 |
工法:在来工法 施工:トータテハウジング 外構付 瑕疵担保保険付 フラット35S使用可能(但し、期限内に限ります) カップボードあり ガス衣類乾燥機(乾太くん)設置 3階2室エアコン取付 大河小学校 翠町中学校 |
||
| QRコード |
このQRコードを読み取ることで、ケータイでも物件情報を確認できます。 |
||























(※元利均等方式 金利5.00%まで ※返済年数5~50年まで入力できます)
(※ボーナスは年2回で計算しています。1000万円まで入力できます)
