オールハウス株式会社 > 安芸郡府中町瀬戸ハイム2丁目 瀬戸ハイム
新着情報:安芸郡府中町瀬戸ハイム2丁目 瀬戸ハイムの空室情報ならコチラ。最寄りの公園瀬戸ハイム第二児童遊園地(徒歩3分)。TVインターフォン付きの物件です。お湯を温め直せる追い焚き機能付きです。住環境が良好だと、自然と気持ちにゆとりが生まれませんか。住まいには人の心までも左右する大きな力があるのです。そんな重要なお住まい探しだからこそ、当社にお任せ頂きたいのです。ぜひご検討ください。
※地図上に表示される物件の位置は付近住所に所在することを表すものであり、実際の物件所在地とは異なる場合がございます。
| 物件名 | 安芸郡府中町瀬戸ハイム2丁目 瀬戸ハイム | ||
|---|---|---|---|
| 所在地 | 広島県安芸郡府中町瀬戸ハイム2丁目 | ||
| 交通 |
|
||
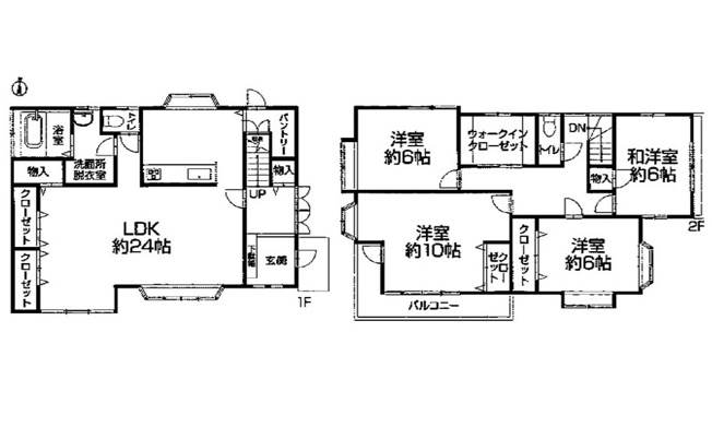
| 間取り/詳細 |
5LDK 1F 約24LDK パントリー 2F 約10洋 約6和洋 約6洋 約6洋 WIC トイレ |
||
| 接道状況 | -(東 公道 6.0m) | ||
| 価格 | 3,099万円 | 主要採光面 | - |
| 建物面積/坪数 | 137.45㎡/ 41.57坪 | 土地面積/坪数 | 162.48㎡/ 49.14坪 |
| 種別/構造 | 中古一戸建/木造 | 築年月(築年数) | 1989年 7月(築36年) |
| 階建 | 2階建 | 地目 | - |
| 駐車場/料金 | 有(2台)/ (車種による) | 地勢 | - |
| 私道面積 | - | セットバック | - |
| 都市計画 | 市街化区域 | 用途地域 | 第一種低層住居専用 |
| 建ぺい率/容積率 | 50%/100% | 土地権利 | 所有権 |
| 総区画数 | 1戸 | 借地料/借地期間 | -/- |
| 現況 | 空家 | その他の法令上の制限 | - |
| 取引態様/引渡時期 | 一般媒介/即時 | 建築確認番号 | - |
| 設備条件 |
|
||
| 備考 |
2025年10月リフォーム完了:キッチン・お風呂・トイレ・洗面台新品、 クロス・クッションフロア張替、フロアタイル張、コンロ新品、網戸張替、 室内クリーニング、白蟻点検、給湯器・建具交換、外壁塗装、 玄関ドア交換 両面バルコニーで日当たり良好 システムキッチン 食器洗機 洗髪洗面化粧台 追焚機能 パントリー 床下収納 TVモニタ付インターホン ウォークインクローゼット 駐車場2台分 府中東小学校 府中中学校 |
||
| QRコード |
このQRコードを読み取ることで、ケータイでも物件情報を確認できます。 |
||






















(※元利均等方式 金利5.00%まで ※返済年数5~50年まで入力できます)
(※ボーナスは年2回で計算しています。1000万円まで入力できます)
