オールハウス株式会社 > 広島市佐伯区美鈴が丘緑2丁目 美鈴が丘
全居室6帖以上ですので、開放感のある演出ができます。新しい土地の新築戸建て物件で、心機一転、新生活を始めませんか。お車が好きな方には必須、3台まで駐車可能です。日常生活で利用頻度の高い水回りだからこそ、使い勝手のいいシステムキッチンを選んでみませんか。広島市佐伯区の山陽本線新井口周辺で住まい探しをするのであれば、当社までご連絡ください。当社でなら、きっと素敵な一戸建てが見つかることでしょう。
※地図上に表示される物件の位置は付近住所に所在することを表すものであり、実際の物件所在地とは異なる場合がございます。
| 物件名 | 広島市佐伯区美鈴が丘緑2丁目 美鈴が丘 | ||
|---|---|---|---|
| 所在地 | 広島県広島市佐伯区美鈴が丘緑2丁目 | ||
| 交通 |
|
||
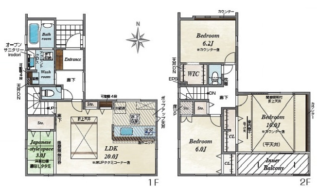
| 間取り/詳細 |
3LDK 1F 20LDK (3タタミコーナー含む) 2F 10洋 6.2洋 6洋 WIC トイレ |
||
| 接道状況 | -(北 公道 6.1m) | ||
| 価格 | 4,230万円 | 主要採光面 | - |
| 建物面積/坪数 | 110.07㎡/ 33.29坪 | 土地面積/坪数 | 170.34㎡/ 51.52坪 |
| 種別/構造 | 新築一戸建/木造 | 築年月(築年数) | 2026年 3月(予定) |
| 階建 | 2階建 | 地目 | - |
| 駐車場/料金 | 有(3台)/- | 地勢 | - |
| 私道面積 | - | セットバック | - |
| 都市計画 | 市街化区域 | 用途地域 | 第一種低層住居専用 |
| 建ぺい率/容積率 | 50%/100% | 土地権利 | 所有権 |
| 総区画数 | 1戸 | 借地料/借地期間 | -/- |
| 現況 | 未完成 | その他の法令上の制限 | - |
| 取引態様/引渡時期 | 一般媒介/相談 | 建築確認番号 | 第R07SHC123047号 |
| 設備条件 |
|
||
| 備考 |
制振ダンパー 耐震等級3の住宅性能評価 長期優良住宅 エネルギー消費性能星3つ 無料点検実施(引渡後3ヶ月・2年・5年・10年) オール電化 食洗乾燥機 浴室換気乾燥機 LED照明(玄関・廊下・キッチン等) 収納充実プラン 樹脂複合サッシ 太陽光パネル搭載(月額利用料要) 美鈴が丘小学校 美鈴が丘中学校 |
||
| QRコード |
このQRコードを読み取ることで、ケータイでも物件情報を確認できます。 |
||






















(※元利均等方式 金利5.00%まで ※返済年数5~50年まで入力できます)
(※ボーナスは年2回で計算しています。1000万円まで入力できます)
