オールハウス株式会社 > 広島市東区尾長東3丁目
芸備線矢賀駅周辺への引っ越しをお考えなら「広島市東区尾長東3丁目」。収納力の高い納戸が付いており、多くの荷物もキレイに整頓できます。快適な室内環境を持つ、中古の一戸建て物件となっています。吹抜けは広々とした印象をあたえてくれます。広島市東区や芸備線矢賀付近でなら、お客様に合った一戸建てがきっと見つかります。まずはご希望条件をスタッフまでお伝え下さい。
※地図上に表示される物件の位置は付近住所に所在することを表すものであり、実際の物件所在地とは異なる場合がございます。
| 物件名 | 広島市東区尾長東3丁目 | ||
|---|---|---|---|
| 所在地 | 広島県広島市東区尾長東3丁目 | ||
| 交通 |
|
||
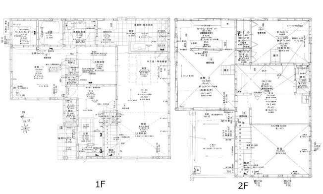
| 間取り/詳細 |
3LDK 1F 約22.9LDK 約8.9洋 約4.6和 約2WIC 2F 約8.2洋 約6.1納戸 約4.1WIC トイレ |
||
| 接道状況 | -(西) | ||
| 価格 | 2,980万円 | 主要採光面 | - |
| 建物面積/坪数 | 139.29㎡/ 42.13坪 | 土地面積/坪数 | 166.09㎡/ 50.24坪 |
| 種別/構造 | 中古一戸建/木造 | 築年月(築年数) | 2012年 6月(築13年) |
| 階建 | 2階建 | 地目 | - |
| 駐車場/料金 | 有(2台)/ (車種による) | 地勢 | - |
| 私道面積 | - | セットバック | - |
| 都市計画 | 市街化区域 | 用途地域 | 第一種住居 |
| 建ぺい率/容積率 | 60%/200% | 土地権利 | 所有権 |
| 総区画数 | 1戸 | 借地料/借地期間 | -/- |
| 現況 | 空家 | その他の法令上の制限 | - |
| 取引態様/引渡時期 | 一般媒介/相談 | 建築確認番号 | - |
| 設備条件 |
|
||
| 備考 |
太陽光発電システム 天井吹き抜け 尾長小学校 二葉中学校 |
||
| QRコード |
このQRコードを読み取ることで、ケータイでも物件情報を確認できます。 |
||






















(※元利均等方式 金利5.00%まで ※返済年数5~50年まで入力できます)
(※ボーナスは年2回で計算しています。1000万円まで入力できます)
